Nebenstromölfilter: Mit Öl Partikelzähler Kondens Wasserabscheider
RMF Offline/Nebenstromölfilter Smart [OLUS..]
Diese Hydrauliköl Nebenstromölfilteranlagen sind für ein breites Spektrum industrieller Anwendungen konzipiert.
Durch die eingebaute Pumpe sind sie unabhängig vom Schmierstoffkreislauf.
Für Hydraulik- und Schmierölsysteme, wie z.B. Kunststoff-Spritzgießmaschinen, Pressen, Stanzen, Verbrennungsmotoren, Turbinen, Getriebe wie auch Transformatoren stehen Filtereinheiten bis zu einem Systeminhalt von 30.000 l aus dem Standardprogramm zur Verfügung. Bei größeren Volumina sind auf Anfrage passende Filtereinheiten erhältlich.
Sämtliche Nebenstromölfilteranlagen sind mit Hydrauliköl Filterelementen von 0,5 - 12µm Filterfeinheit erhältlich.
Diese Öl Nebenstromölfilter-Einheit besteht aus einem Filtergehäuse, einer extrem langlebigen Zahnradölpumpe und einem Manometer zur Füllstandsanzeige.
Weiter ist dieses System mit einem Partikelzähler und Wassersensor ausgestattet.
Produktvariationen Standard
OLUS1A30HB00000, OLUS1A30HV00000,OLUS1A30G1B00000, OLUS1A30G1V00000, OLUS1A30G3B00000, OLUS1A30G3V00000, OLUS1A30A5B00000.
OLUS1B30HB01000, OLUS1B30HV01000, OLUS1B30G1B01000, OLUS1B30G1V01000, OLUS1B30G3B01000, OLUS1B30G3V01000, OLUS1B30A5B01000, OLUS1B60HB01000, OLUS1B60HV01000, OLUS1B60G1B01000, OLUS1B60G1V01000, OLUS1B60G3B01000, OLUS1B60G3V01000, OLUS1B60A5B01000.
Produktdetails
| OLUS1A | OLUS1B | |
|---|---|---|
| Nenndurchfluss | 2.1 l/min | 4.2 l/min |
| Max. Öltemperatur1 (Standard) | 80°C | 80°C |
| Max. Druck im Filtergehäuse | 20 bar | 20 bar |
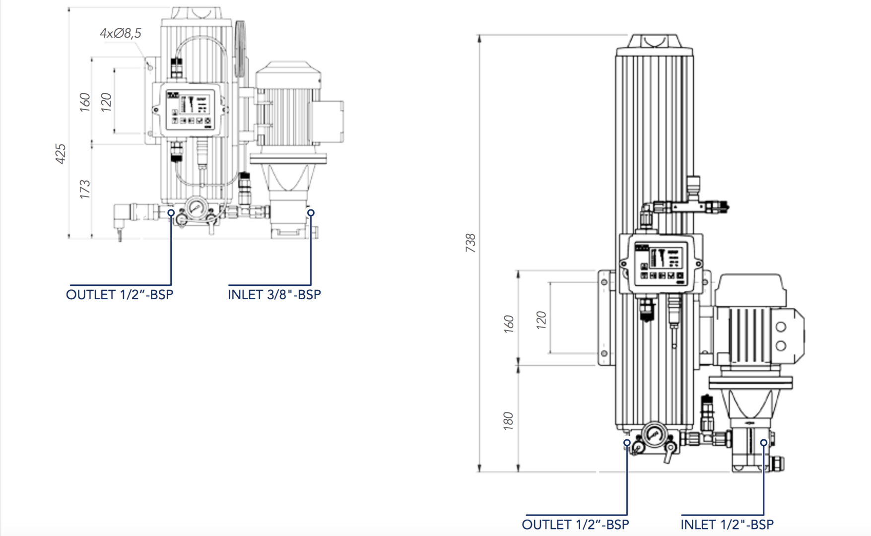
| Einlassverbindung2 | 3/8" BSP Innengewinde | 1/2" BSP Innengewinde. |
| Auslassverbindung | 1/2" BSP Innengewinde | 1/2" BSP Innengewinde |
| Stromversorgung des Elektromotors | Verschiedene elektrische Leistungen lieferbar (bei SOL-Industrie anfragen) | Verschiedene elektrische Leistungen lieferbar (bei SOL-Industrie anfragen) |
| Geeignete Elemente | 30HB, 30HV, 30NB, 30NV, 30G1B, 30G1V, 30G3B, 30G3V, 30A5B | 30HB, 30HV, 30NB, 30NV, 60HB 60HV, 60NB, 60NV, 30G1B, 30G1V, 30G3B, 30G3V, 30A5B, 60G1B, 60G1V, 60G3B, 60G3V |
| „By-pass“ Öffnungsdruck | 6.2 bar (bei 0 bar Gegendruck) | 6.2 bar (bei 0 bar Gegendruck) |
| Pumpen-Sicherheitsventil | 15 bar | 15 bar |
| Max. Tankvolumen | ±1.350 l | ± 2.700 l |
| Flüssigkeitskompatibilität4 | Hydraulik Füssigkeiten nach ISO 2943 | Hydraulik Füssigkeiten nach ISO 2943 |
| Gewicht (ca.) | 16 kg | 20 kg |
1 Für andere Öltemperaturen kontaktieren Sie bitte SOL-Industrie
2 Die Einlassverbindungen sind pumpenabhängig. Bitte kontaktieren Sie SOL-Industrie
3 Vollständige Beschreibung der RMF Systems Filterelemente klick hier
4 Für andere Hydrauliköl-Flüssigkeiten kontaktieren Sie bitte SOL-Industrie
Produktvariationen Standard
OLUS2A30HB00000, OLUS2A30HV00000,OLUS2A30G1B00000, OLUS2A30G1V00000, OLUS2A30G3B00000, OLUS2A30G3V00000, OLUS2A30A5B00000.
OLUS2B30HB01000, OLUS2B30HV01000, OLUS2B30G1B01000, OLUS2B30G1V01000, OLUS2B30G3B01000, OLUS2B30G3V01000, OLUS2B30A5B01000,OLUS2B60HB01000, OLUS2B60HV01000, OLUS2B60G1B01000, OLUS2B60G1V01000, OLUS2B60G3B01000, OLUS2B60G3V01000, OLUS2B60A5B01000.
Produktdetails
| OLUS2A | OLUS2B | |
|---|---|---|
| Nenndurchfluss | 4.2 l/min | 8.4 l/min |
| Max. Öltemperatur1 (Standard) | 80°C | 80° |
| Max. Druck im Filtergehäuse | 20 bar | 20 bar |
| Einlassverbindung2 | 1/2" BSP Innengewinde | 1/2" BSP Innengewinde. |
| Auslassverbindung | 1/2" BSP Innengewinde | 1/2" BSP Innengewinde |
| Stromversorgung des Elektromotors | Verschiedene elektrische Leistungen lieferbar (bei SOL-Industrie anfragen) | Verschiedene elektrische Leistungen lieferbar (bei SOL-Industrie anfragen) |
| Geeignete Elemente | 30HB, 30HV, 30NB, 30NV, 30G1B, 30G1V, 30G3B, 30G3V, 30A5B | 30HB, 30HV, 30NB, 30NV, 60HB 60HV, 60NB, 60NV, 30G1B, 30G1V, 30G3B, 30G3V, 30A5B, 60G1B, 60G1V, 60G3B, 60G3V |
| „By-pass“ Öffnungsdruck | 6.2 bar (bei 0 bar Gegendruck) | 6.2 bar (bei 0 bar Gegendruck) |
| Pumpen-Sicherheitsventil | 15 bar | 15 bar |
| Max. Tankvolumen | ±2.700 l | ± 5.400 l |
| Flüssigkeitskompatibilität4 | Hydraulik Füssigkeiten nach ISO 2943 | Hydraulik Füssigkeiten nach ISO 2943 |
| Gewicht (ca.) | 23 kg | 32 kg |
1 Für andere Öltemperaturen kontaktieren Sie bitte SOL-Industrie
2 Die Einlassverbindungen sind pumpenabhängig. Bitte kontaktieren Sie SOL-Industrie
3 Vollständige Beschreibung der RMF Systems Filterelemente klick hier
4 Für andere Hydrauliköl-Flüssigkeiten kontaktieren Sie bitte SOL-Industrie
Produktvariationen Standard
OLUS4A30HB00000, OLUS4A30HV00000,OLUS4A30G1B00000, OLUS4A30G1V00000, OLUS4A30G3B00000, OLUS4A30G3V00000, OLUS4A30A5B00000.
OLUS4B30HB01000, OLUS4B30HV01000, OLUS4B30G1B01000, OLUS4B30G1V01000, OLUS4B30G3B01000, OLUS4B30G3V01000, OLUS4B30A5B01000, OLUS4B60HB01000, OLUS4B60HV01000, OLUS4B60G1B01000, OLUS4B60G1V01000, OLUS4B60G3B01000, OLUS4B60G3V01000, OLUS4B60A5B01000.
Produktdetails
| OLUS4A | OLU4B | |
|---|---|---|
| Nenndurchfluss | 8.4 l/min | 16.3 l/min |
| Max. Öltemperatur1 (Standard) | 80°C | 80°C |
| Max. Druck im Filtergehäuse | 20 bar | 20 bar |
| Einlassverbindung2 | 1/2" BSP Innengewinde | 3/4" BSP Innengewinde. |
| Auslassverbindung | EW22L | EW22L |
| Stromversorgung des Elektromotors | Verschiedene elektrische Leistungen lieferbar (bei SOL-Industrie anfragen) | Verschiedene elektrische Leistungen lieferbar (bei SOL-Industrie anfragen) |
| Geeignete Elemente | 30HB, 30HV, 30NB, 30NV, 30G1B, 30G1V, 30G3B, 30G3V, 30A5B | 30HB, 30HV, 30NB, 30NV, 60HB 60HV, 60NB, 60NV, 30G1B, 30G1V, 30G3B, 30G3V, 30A5B, 60G1B, 60G1V, 60G3B, 60G3V |
| „By-pass“ Öffnungsdruck | 6,2 bar (bei 0 bar Gegendruck) | 6,2 bar (bei 0 bar Gegendruck) |
| Pumpen-Sicherheitsventil | 15 bar | 15 bar |
| Max. Tankvolumen | ±5.400 l | ± 10.800 l |
| Flüssigkeitskompatibilität4 | Hydraulik Füssigkeiten nach ISO 2943 | Hydraulik Füssigkeiten nach ISO 2943 |
| Gewicht (ca.) | 41 kg | 63 kg |
1 Für andere Öltemperaturen kontaktieren Sie bitte SOL-Industrie
2 Die Einlassverbindungen sind pumpenabhängig. Bitte kontaktieren Sie SOL-Industrie
3 Vollständige Beschreibung der RMF Systems Filterelemente klick hier
4 Für andere Hydrauliköl-Flüssigkeiten kontaktieren Sie bitte SOL-Industrie











